Villa a schiera in vendita

Brescia, Via Gian Battista Cacciamali - Noce
€ 289.000
4 locali 4 locali
191 Mq 191 Mq
2 bagni 2 bagni

Villa a schiera in vendita

Brescia, Via Gian Battista Cacciamali - Noce

Descrizione annuncio

VIESSE STUDIO SRL - Tecnorete

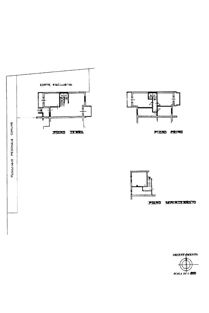
Nel tranquillo contesto residenziale del quartiere della Noce,proponiamo villa a schiera di testa disposta su più livelli.

Attraversiamo il giardino privato e salendo tre gradini arriviamo al pianerottolo d'ingresso.

Un portone blindato ci immette direttamente nella zona giorno. A sinistra abbiamo una grande cucina abitabile a vista. A destra un comodo bagno di servizio finestrato. Frontalmente invece si sviluppa il salone doppio dotato di ampie finestre.

Tra la cucina e il soggiorno, troviamo il corpo scala che serve i vari livelli.

Al primo piano si sviluppa la zona notte, caratterizzata da due ampie camere matrimoniali, una camera singola ed infine un bagno finestrato con doccia recentemente rifatto.

A piano interrato invece, troviamo a destra la lavanderia ed una comoda cantina. A sinistra invece troviamo l'accesso al garage doppio in larghezza. L'immobile viene venduto con un secondo garage doppio, contiguo alla abitazione

Costruita nel 1990, la villa è dotata di aria condizionata, assicurando un ambiente confortevole in ogni stagione. Questa soluzione abitativa è perfetta per chi cerca spazio e comodità in una zona ben servita.

ORIGINE DEL NOME:

Il nome ''Brescia'' deriva secondo gli storici dal suffisso celtico ''bric'' che significa cima, monte, in riferimento al colle Cidneo dove i galli cenomani costruirono il primo insediamento abitativo di quella che in futuro diverrà la città di Brescia. Successivamente divenne ''colonia Brixia'' con i romani (costruzione dell'acquedotto e del Capitolium); alla caduta dell'impero romano d'Occidente (476 .) subì le invasioni barbariche (Teodorico e Alarico). La città divenne sede di un ducato al tempo dell'invasione dei Longobardi (Rotari e Desiderio) per passare più tardi sotto il regno di Carlo Magno, che aveva sposato e poi ripudiato Desiderata (Ermengarda nella tragedia ''Adelchi'' di Alessandro Manzoni), figlia di re Desiderio, che concluse la propria vita nel monastero di S. Salvatore.

Mostra tutto

Nelle vicinanze

Trasporto pubblico Trasporto pubblico
Lamarmora
Lamarmora
2,6 Km
Bresciadue
Bresciadue
2,7 Km
Brescia Borgo San Giovanni
Brescia Borgo San Giovanni
2,9 Km
frazione Noce (scuole Savoini) capolinea
frazione Noce (scuole Savoini) capolinea
200 m
Via Ghislandi n 6
Via Ghislandi n 6
210 m
Ricariche auto elettriche Ricariche auto elettriche
A2A Villaggio Sereno
990 m
A2A Media World
1,6 Km
COOP cc Nuovo Flaminia
1,8 Km
SIPROTEC / OMB1
1,8 Km
Brescia Supercharger
1,9 Km
Scuole Scuole
Scuole
810 m
Istituto Salesiano Don Bosco
2,1 Km
Istituto di Istruzione Superiore Statale Camillo Golgi
2,3 Km
Scuola Secondaria di Primo Grado Statale Antonio Gramsci
2,4 Km
Scuola Primaria Gianni Rodari
2,5 Km
Farmacia Farmacia
Farmacia Chiesanuova
870 m
Farmacia Santa Rita
1,0 Km
Farmacia Zampedri
1,1 Km
Farmacia Varoli
1,4 Km
Farmacia Saleri
1,8 Km
Ospedali Ospedali
Pilastroni
1,7 Km
Supermercati Supermercati
Metro
420 m
Bennet
430 m
Lidl
570 m
China and African Market
1,6 Km
Simply Market
2,3 Km
Negozi Negozi
El Forner
1,0 Km
Balboni
1,3 Km
Corini Abbigliamento
1,8 Km
Atelir "Chez moi"
1,8 Km
CRIStyle
1,8 Km
Bar Bar
Bar Alex
280 m
Farenait
1,2 Km
Circus Beat Club
1,7 Km
Nuovo Bar Aki
1,8 Km
Flower Cafè
1,8 Km
Ristoranti Ristoranti
Carne & Spirito
130 m
Wiener Haus
540 m
Old Wild West OZ
550 m
La Cantinaccia
560 m
Pizza Madre
570 m
Mostra tutto

Caratteristiche

Rif.:
61139100
Piano:
2 di 2 (Piano su più livelli)
Box:
2
Balconi:
4
Camere da letto:
3
Arredamento:
Assente
Mostra tutto
Prezzo Prezzo
€ 289.000
Rata mutuo Rata mutuo
€ 1.373 / mese
Spese annue Spese annue
€ 2.000
Proponi il tuo prezzoProponi il tuo prezzo
Immobile valutato con T·Valuta

Classe Energetica

G
G
G
G
G
G
G
G
G
EP globale non rinnovabile:
170.00 kW h/m² anno
EP globale rinnovabile:
20.00 kW h/m² anno
EP invernale del fabbricato:
EP estiva del fabbricato:
Anno di costruzione:
1990
Riscaldamento:
Autonomo
Tipo impianto:
A radiatori
Tipo alimentazione:
Metano

Ti interessa visionare l'immobile?

Fissa un appuntamento  Fissa un appuntamento

Richiedi informazioni

Clicca su Leggi per aprire l'informativa
* Questi campi sono obbligatori

Calcola il tuo mutuo

Semplice e senza impegno
Anticipo

( % )
Mutuo

( % )

pochi semplici passi

inserisci i tuoi dati
Questionario completato
Grazie per aver richiesto un appuntamento senza impegno con un nostro Consulente del Credito e Assicurativo.

Hai inserito correttamente tutti i dati necessari e a breve riceverai una e-mail con un link da convalidare per inviare i tuoi dati.
Affiliato
Viesse Studio Srl
Via Traversa Dodicesima Villaggio Sereno, 42 25125 Brescia (BS)

Il nostro staff


  • Andrea Dubini
    Responsabile

  • Roberta Frassine
    Collaboratrice

  • Emanuele Pesce
    Affiliato
Via Traversa Dodicesima Villaggio Sereno, 42 25125 Brescia (BS)
Zona: Villaggio Sereno
Mostra su mappa
Affiliato
Viesse Studio Srl
Via Traversa Dodicesima Villaggio Sereno, 42 25125 Brescia (BS)

2026 Tecnocasa Franchising S.p.A. - P. IVA 08365160152 - Via Monte Bianco 60/A 20089 Rozzano (MI). Ogni agenzia ha un proprio titolare ed è autonoma. Privacy policy | Policy utilizzo | Cookie policy